ChatsApp
U$S 140.595
Venta

Fecha de entrega

Abril 2027

Descripción

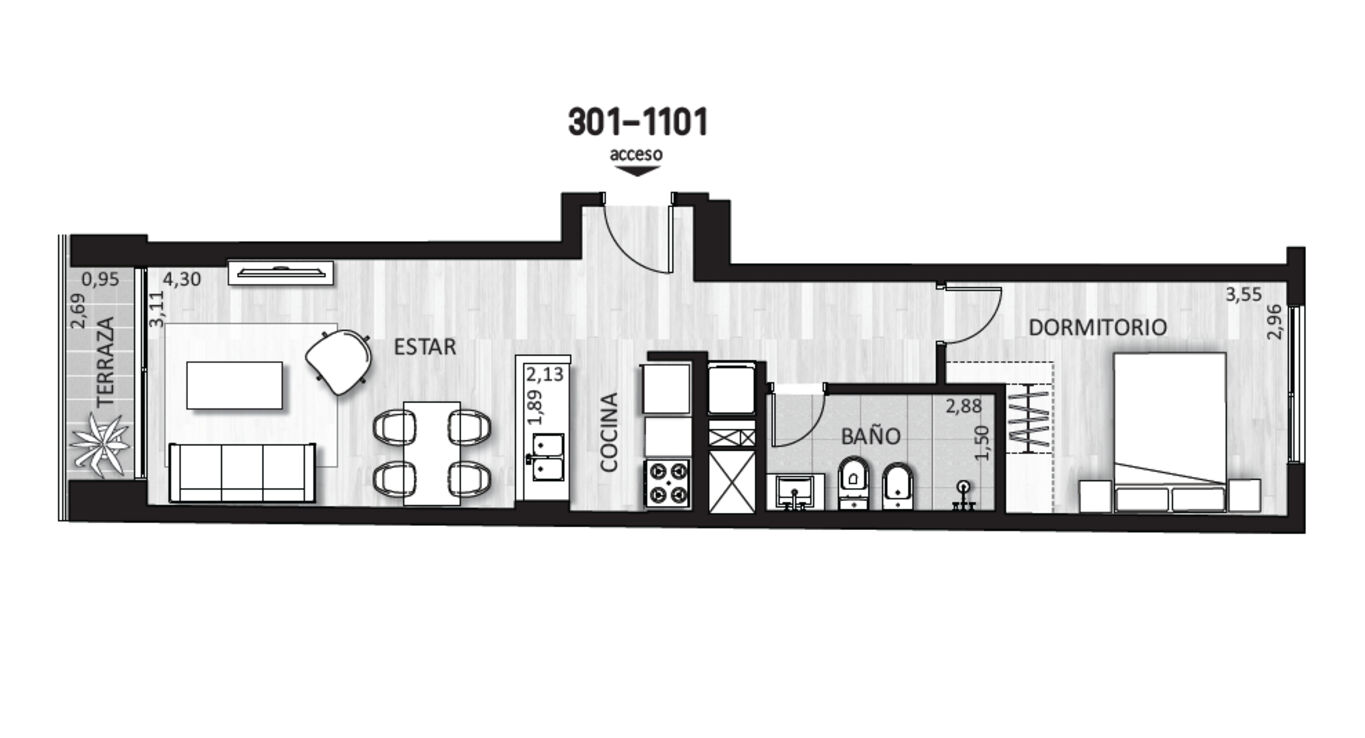
Apartamento de 1 dormitorio con terraza, ubicado en Mercedes y Minas, en el corazón de Cordón.

Cuenta con living comedor con salida a terraza, cocina integrada, baño completo y dormitorio.
Previsión para instalación de aire acondicionado.

El edificio ofrece amenities de uso común en el primer piso: cowork, gimnasio, microcine y parrilleros.

Ubicado en una zona con gran oferta de servicios, comercios y excelente conectividad, con múltiples líneas de transporte público.

El edificio está amparado bajo la Ley 18.795, con beneficios fiscales para inversores.

Opción de garage desde USD 15.450
Conexiones: 4.5%
Entrega: setiembre 2026

Características de la propiedad

  • Nº de UnidadUnidad: 301
  • Habitaciones1 Habitación
  • BañosBaños: 1
  • SuperficieSuperficie: 61 m²
  • Superficie ConstruidaSuperficie Construida: 50 m²
  • Superficie BalconesSuperficie Balcones: 3m²
  • ParrilleroParrillero
  • OrientaciónOrientación: Sur
  • DisposiciónDisposición: Frente
  • Propiedad HorizontalPropiedad Horizontal
  • PisoPiso: 3
  • Aptos por pisoAptos por piso: 7
  • Pisos EdificioPisos Edificio: 11
  • Año de ConstrucciónAño de Construcción: 2025
  • AscensorAscensor
  • Acepta MascotasAcepta Mascotas